Linda Bridges at Texas Pro Real Estate
MLS: 19138744 $1,395,345
2 Bedrooms with 3 Baths2520 HOUSTON AVENUE # 601
HOUSTON TX 77009MLS: 19138744
Status: ACTIVE
List Price: $1,395,345
Price per SQFT: $489
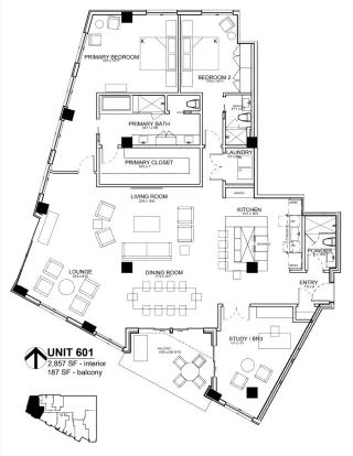
Square Footage: 28562 Bedrooms
3 Baths
Year Built: 2025
Zip Code: 77009
Listing Remarks
TRIPLE THE VIEWS! This fantastic CUSTOM DESIGNED LOFT occupies the entire west end of the building, wrapping around 3 corners for PANORAMIC VIEWS OF THE CITY, including the coveted Downtown Houston Skyline. Step into your luxury LOFT with dramatic 14' ceilings and jaw-dropping windows lining the perimeter and find HOME. Stunning & well-appointed primary suite - luxury included. Secondary bedroom offers an en-suite while the full Powder Bath is available for guests. LOCATION LOCATION LOCATION! The Houston Heights is one of the most desired neighborhoods in all of Houston, famous for it's historical homes & diverse culture! The White Oak is adjacent to The White Oak Bayou with biking/walking paths to head to Stude Park or explore the city. Don't wait, call today & let's bring your vision to life!!
Address: 2520 HOUSTON AVENUE # 601 HOUSTON TX 77009
Listing Courtesy of CHODROW REALTY ADVISORS
Community: THE HEIGHTS ... Listing 3 of 4
First -- Next -- Previous -- Last
Condo Mania Agent
Linda Bridges
Texas Pro Real Estate
Broker - TREC #0249245
Request More Information
Listing Details
STATUS: Active LISTING CONTRACT DATE: 2023-10-25 BEDROOMS: 2 BATHROOMS FULL: 3 BATHROOMS HALF: 0 LIVING AREA SQ FT: 2856 BUILDING AREA TOTAL: 2856 YEAR BUILT: 2025 HOA FEES FREQUENCY: Monthly HOA FEES: $1,851 HEATING: Natural Gas COOLING: Electric LEGAL DESCRIPTION: RES A BLK 1 WHITE OAK PARKING FEATURES: Assigned, Controlled Entrance PROPERTY TYPE: Residential PROPERTY SUB TYPE: Condominium VIEW: South, West LISTING AGENT: ALAN CHODROW LISTING OFFICE: CHODROW REALTY ADVISORS
Estimated Monthly Payments
List Price: $1,395,345 20% Down Payment: $279,069 Loan Amount: $1,116,276 Loan Type: 30 Year Fixed Interest Rate: 6.5 % Monthly Payment: $7,056 Estimate does not include taxes, fees, insurance.
Request More Information
Property Location: 2520 HOUSTON AVENUE # 601 HOUSTON TX 77009
This Listing
Active Listings Nearby
Condo Mania Agent
Linda Bridges
Texas Pro Real Estate
Broker - TREC #0249245
You Might Also Be Interested In...
Community: THE HEIGHTS ... Listing 3 of 4
First -- Next -- Previous -- Last
The Fair Housing Act prohibits discrimination in housing based on color, race, religion, national origin, sex, familial status, or disability.
Copyright © 2025 Houston Realtors Information Service, Inc. All information provided is deemed reliable but is not guaranteed and should be independently verified. Houston Realtors Information Service, Inc., this website and their affiliates provide the MLS and all content therein "AS IS" and without any warranty, express or implied. The information included in this listing is provided exclusively for consumers' personal, non-commercial use and may not be used for any purpose other than to identify prospective properties consumers may be interested in purchasing.
The information on each listing is furnished by the owner and deemed reliable to the best of his/her knowledge, but should be verified by the purchaser. Houston Realtors Information Service, Inc. and this website assume no responsibility for typographical errors, misprints or misinformation. This property listing is offered without respect to any protected classes in accordance with the law.
Information Deemed Reliable But Not Guaranteed. The information being provided is for consumer's personal, non- commercial use and may not be used for any purpose other than to identify prospective properties consumers may be interested in purchasing. This information, including square footage, while not guaranteed, has been acquired from sources believed to be reliable.
Last Updated: 2025-11-07 05:16:05
Houston Condo Mania






