Linda Bridges at Texas Pro Real Estate
MLS: 35140698 $461,000
3 Bedrooms with 3 Baths1114 W 25TH STREET
HOUSTON TX 77008MLS: 35140698
Status: ACTIVE
List Price: $461,000
Price per SQFT: $220
Square Footage: 20983 Bedrooms
3 Baths
Year Built: 2010
Zip Code: 77008
Listing Remarks
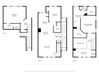
Home has numerous recent improvements: Roof 10/2025, Dishwasher (23), Water heater (25), HVAC coil (19). This beautifully designed home features a spacious 4-car driveway and a generous 2-car garage. Inside, you'll find elegant Red Oak, site-finished solid wood floors, and stairs. There's a bar area where your guests can gather while you cook in the light-filled kitchen. The second floor is designed for both living and entertainment, offering a versatile bedroom/office space. Additionally, there is a substantial private guest bedroom on the first floor, which has access to the outdoor patio. The owner's suite occupies the entire third floor and includes a small wet bar and a cozy nook that overlooks the living room—perfect for curling up with a good book while doing laundry. The spacious primary bedroom features two large walk-in closets and an open primary bath with double vanities. Floor plans with approximate room sizes are in the photo area. Confirm all dimensions.
Address: 1114 W 25TH STREET HOUSTON TX 77008
Listing Courtesy of ALL CITY REAL ESTATE
Condo Mania Agent
Linda Bridges
Texas Pro Real Estate
Broker - TREC #0249245
Request More Information
Listing Details
STATUS: Active LISTING CONTRACT DATE: 2026-01-12 BEDROOMS: 3 BATHROOMS FULL: 3 BATHROOMS HALF: 0 LIVING AREA SQ FT: 2098 BUILDING AREA TOTAL: 2098 YEAR BUILT: 2010 TAXES: $8,909 HOA FEES FREQUENCY: Annually HOA FEES: $1,405 APPLIANCES INCLUDED: Disposal, Freestanding Oven, Gas Oven, Microwave, Gas Range, Refrigerator, Dishwasher, Washer/Dryer ARCHITECTURAL STYLE: Contemporary/Modern CONSTRUCTION: Cement Siding, Stone, Stucco EXTERIOR FEATURES: Balcony FIREPLACE: Decorative FLOORING: Tile, Wood HEATING: Natural Gas COOLING: Ceiling Fan(s), Electric INTERIOR FEATURES: 2 Staircases, Balcony, 1 Bedroom Down - Not Primary BR,En-Suite Bath,Primary Bed - 3rd Floor,Walk-In Closet(s) LAUNDRY FEATURES: Electric Dryer Connection, Gas Dryer Connections, Inside LEGAL DESCRIPTION: LT 30 BLK 1 LANDING AT BEALL STREET AMEND LOT FEATURES: On Street # GARAGE SPACES: 2 PARKING FEATURES: Attached PROPERTY TYPE: Residential PROPERTY SUB TYPE: Townhouse/Condo, Townhouse ROOF: Composition STORIES TOTAL: 3 DIRECTION FACES: North VIEW: South LISTING AGENT: RICHARD PARKER LISTING OFFICE: ALL CITY REAL ESTATE
Estimated Monthly Payments
List Price: $461,000 20% Down Payment: $92,200 Loan Amount: $368,800 Loan Type: 30 Year Fixed Interest Rate: 6.5 % Monthly Payment: $2,331 Estimate does not include taxes, fees, insurance.
Request More Information
Property Location: 1114 W 25TH STREET HOUSTON TX 77008
This Listing
Active Listings Nearby
Condo Mania Agent
Linda Bridges
Texas Pro Real Estate
Broker - TREC #0249245
The Fair Housing Act prohibits discrimination in housing based on color, race, religion, national origin, sex, familial status, or disability.
Copyright © 2026 Houston Realtors Information Service, Inc. All information provided is deemed reliable but is not guaranteed and should be independently verified. Houston Realtors Information Service, Inc., this website and their affiliates provide the MLS and all content therein "AS IS" and without any warranty, express or implied. The information included in this listing is provided exclusively for consumers' personal, non-commercial use and may not be used for any purpose other than to identify prospective properties consumers may be interested in purchasing.
The information on each listing is furnished by the owner and deemed reliable to the best of his/her knowledge, but should be verified by the purchaser. Houston Realtors Information Service, Inc. and this website assume no responsibility for typographical errors, misprints or misinformation. This property listing is offered without respect to any protected classes in accordance with the law.
Information Deemed Reliable But Not Guaranteed. The information being provided is for consumer's personal, non- commercial use and may not be used for any purpose other than to identify prospective properties consumers may be interested in purchasing. This information, including square footage, while not guaranteed, has been acquired from sources believed to be reliable.
Last Updated: 2026-01-13 05:16:54
Houston Condo Mania






