Linda Bridges at Texas Pro Real Estate
MLS: 42157851 $280,000
3 Bedrooms with 2 Baths2213 VIA ISA LANE
HOUSTON TX 77051MLS: 42157851
Status: ACTIVE
List Price: $280,000
Price per SQFT: $147
Square Footage: 19063 Bedrooms
2 Baths
Year Built: 2025
Zip Code: 77051
Listing Remarks
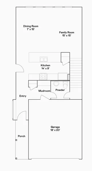
NEW! Lennar Urban Villas Collection "Bagby II" Plan with Stone Elevation "QM" in the Beautiful Community of Piccolina! A two-story home with an open first-floor layout that includes a kitchen, dining room and a family room. Upstairs boasts two secondary bedrooms, with one offering flexibility as a work or play space. The owner’s suite highlights a private bathroom with a walk-in closet.
Address: 2213 VIA ISA LANE HOUSTON TX 77051
Listing Courtesy of LENNAR HOMES VILLAGE BUILDERS, LLC
Condo Mania Agent
Linda Bridges
Texas Pro Real Estate
Broker - TREC #0249245
Request More Information
Listing Details
STATUS: Active LISTING CONTRACT DATE: 2026-01-13 BEDROOMS: 3 BATHROOMS FULL: 2 BATHROOMS HALF: 0 LIVING AREA SQ FT: 1906 BUILDING AREA TOTAL: 1906 YEAR BUILT: 2025 HOA FEES FREQUENCY: Annually HOA FEES: $1,000 ARCHITECTURAL STYLE: Traditional CONSTRUCTION: Cement Siding, Stone HEATING: Natural Gas COOLING: Electric LEGAL DESCRIPTION: SEC 0007 BLK 001 LOT 139 # GARAGE SPACES: 2 PARKING FEATURES: Attached PROPERTY TYPE: Residential PROPERTY SUB TYPE: Townhouse/Condo, Townhouse ROOF: Composition STORIES TOTAL: 2 LISTING AGENT: JARED TURNER LISTING OFFICE: LENNAR HOMES VILLAGE BUILDERS, LLC
Estimated Monthly Payments
List Price: $280,000 20% Down Payment: $56,000 Loan Amount: $224,000 Loan Type: 30 Year Fixed Interest Rate: 6.5 % Monthly Payment: $1,416 Estimate does not include taxes, fees, insurance.
Request More Information
Property Location: 2213 VIA ISA LANE HOUSTON TX 77051
This Listing
Active Listings Nearby
Condo Mania Agent
Linda Bridges
Texas Pro Real Estate
Broker - TREC #0249245
The Fair Housing Act prohibits discrimination in housing based on color, race, religion, national origin, sex, familial status, or disability.
Copyright © 2026 Houston Realtors Information Service, Inc. All information provided is deemed reliable but is not guaranteed and should be independently verified. Houston Realtors Information Service, Inc., this website and their affiliates provide the MLS and all content therein "AS IS" and without any warranty, express or implied. The information included in this listing is provided exclusively for consumers' personal, non-commercial use and may not be used for any purpose other than to identify prospective properties consumers may be interested in purchasing.
The information on each listing is furnished by the owner and deemed reliable to the best of his/her knowledge, but should be verified by the purchaser. Houston Realtors Information Service, Inc. and this website assume no responsibility for typographical errors, misprints or misinformation. This property listing is offered without respect to any protected classes in accordance with the law.
Information Deemed Reliable But Not Guaranteed. The information being provided is for consumer's personal, non- commercial use and may not be used for any purpose other than to identify prospective properties consumers may be interested in purchasing. This information, including square footage, while not guaranteed, has been acquired from sources believed to be reliable.
Last Updated: 2026-01-14 05:16:56
Houston Condo Mania






