Linda Bridges at Texas Pro Real Estate
MLS: 75346764 $240,000
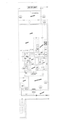
1 Bedroom with 1 Bath401 LAKESIDE LANE # 203
HOUSTON TX 77058MLS: 75346764
Status: ACTIVE
List Price: $240,000
Price per SQFT: $270
Square Footage: 8881 Bedroom
1 Bath
Year Built: 2024
Zip Code: 77058
Listing Remarks
ALL NEW CONSTRUCTION! Great open floor-plan unit, with superior views throughout. Nestled in the charming and historic Nassau Bay. The Bayfront is an exceptional condominium complex offering unparalleled views of the lake. Located directly across from NASA and the Space Center, this community enjoys a prime waterfront setting. Residents can savor stunning sunrises and sunsets, watch boat parades, and even spot dolphins in the lake—all from the comfort of their own private balcony.The surrounding area is filled with top-tier dining and entertainment options, including waterfront restaurants, fabulous shopping, and family-friendly attractions like the Great Wolf Lodge. Just minutes away is the Kemah Boardwalk, and Galveston Bay is a short drive down I-45.Following a fire that affected 11 units in Building B, The Bayfront is currently being rebuilt, with construction progressing rapidly. Now is the time to purchase a brand-new unit! (Completion date is projected to be early 2026.)
Address: 401 LAKESIDE LANE # 203 HOUSTON TX 77058
Listing Courtesy of COLDWELL BANKER REALTY - HOUSTON BAY AREA
Community: BAYFRONT TOWERS ... Listing 2 of 3
First -- Next -- Previous -- Last
Condo Mania Agent
Linda Bridges
Texas Pro Real Estate
Broker - TREC #0249245
Request More Information
Listing Details
STATUS: Active LISTING CONTRACT DATE: 2024-12-19 BEDROOMS: 1 BATHROOMS FULL: 1 BATHROOMS HALF: 0 LIVING AREA SQ FT: 888 BUILDING AREA TOTAL: 888 YEAR BUILT: 2024 TAXES: $5,976 HOA FEES FREQUENCY: Monthly HOA FEES: $767 HOA AMENITIES: Picnic Area, Pool, Garbage Service APPLIANCES INCLUDED: Disposal, Electric Oven, Microwave, Electric Range, Dishwasher, Washer/Dryer ARCHITECTURAL STYLE: Contemporary/Modern CONSTRUCTION: Stucco EXTERIOR FEATURES: Back Green Space, Balcony, Front Green Space, Side Green Space, Storage FLOORING: Vinyl Plank HEATING: Electric COOLING: Ceiling Fan(s), Electric INTERIOR FEATURES: Balcony, Elevator, Primary Bed - 1st Floor LAUNDRY FEATURES: Inside LEGAL DESCRIPTION: TH 203 BLDG A 1/74 INT COMMON LAND & ELE BAYFRONT TOWERS CON # GARAGE SPACES: 1 PARKING FEATURES: Attached, Additional Parking, Assigned, Garage PETS ALLOWED Y/N: With Restrictions PROPERTY TYPE: Residential PROPERTY SUB TYPE: Townhouse/Condo, Condominium ROOF: Metal STORIES TOTAL: 3 DIRECTION FACES: West VIEW: East, Pool, Water, Lake LISTING AGENT: LORI VAUGHN LISTING OFFICE: COLDWELL BANKER REALTY - HOUSTON BAY AREA
Estimated Monthly Payments
List Price: $240,000 20% Down Payment: $48,000 Loan Amount: $192,000 Loan Type: 30 Year Fixed Interest Rate: 6.5 % Monthly Payment: $1,214 Estimate does not include taxes, fees, insurance.
Request More Information
Property Location: 401 LAKESIDE LANE # 203 HOUSTON TX 77058
This Listing
Active Listings Nearby
Condo Mania Agent
Linda Bridges
Texas Pro Real Estate
Broker - TREC #0249245
You Might Also Be Interested In...
Community: BAYFRONT TOWERS ... Listing 2 of 3
First -- Next -- Previous -- Last
The Fair Housing Act prohibits discrimination in housing based on color, race, religion, national origin, sex, familial status, or disability.
Copyright © 2026 Houston Realtors Information Service, Inc. All information provided is deemed reliable but is not guaranteed and should be independently verified. Houston Realtors Information Service, Inc., this website and their affiliates provide the MLS and all content therein "AS IS" and without any warranty, express or implied. The information included in this listing is provided exclusively for consumers' personal, non-commercial use and may not be used for any purpose other than to identify prospective properties consumers may be interested in purchasing.
The information on each listing is furnished by the owner and deemed reliable to the best of his/her knowledge, but should be verified by the purchaser. Houston Realtors Information Service, Inc. and this website assume no responsibility for typographical errors, misprints or misinformation. This property listing is offered without respect to any protected classes in accordance with the law.
Information Deemed Reliable But Not Guaranteed. The information being provided is for consumer's personal, non- commercial use and may not be used for any purpose other than to identify prospective properties consumers may be interested in purchasing. This information, including square footage, while not guaranteed, has been acquired from sources believed to be reliable.
Last Updated: 2026-01-29 05:18:00
Houston Condo Mania






